Aluminum Door Assembly
Serialized Tab Data
Home › Repair Specifications › Aluminum Door Assembly
Aluminum Door Assembly
2AEX SHIELD MODIFICATION SPECIFICATION:
This specification applies to the GME Lite Shield System
SPECIFICATIONS:
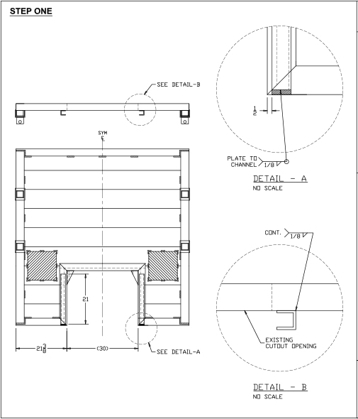
- All welding shall be performed according to the Aluminum Association’s Specifications for Aluminum Structures
- A certified welder shall perform all welding.
- 3/64 Diameter 5356 welding wire shall be used to complete the welds.
- The End Bracket replacement part shall be manufactured by GME.
- Channel C2 X 2 X 1/4 6061-T6 Aluminum.
PROCEDURE
- Grind existing weld off using grinding disc made for aluminum materials.
- Weld channel to shield as shown.
- Weld stop to channel as shown.
