Build-A-Box (ECP) Panel Repair
Serialized Tab Data
Home › Repair Specifications › Build-A-Box (ECP) Panel Repair
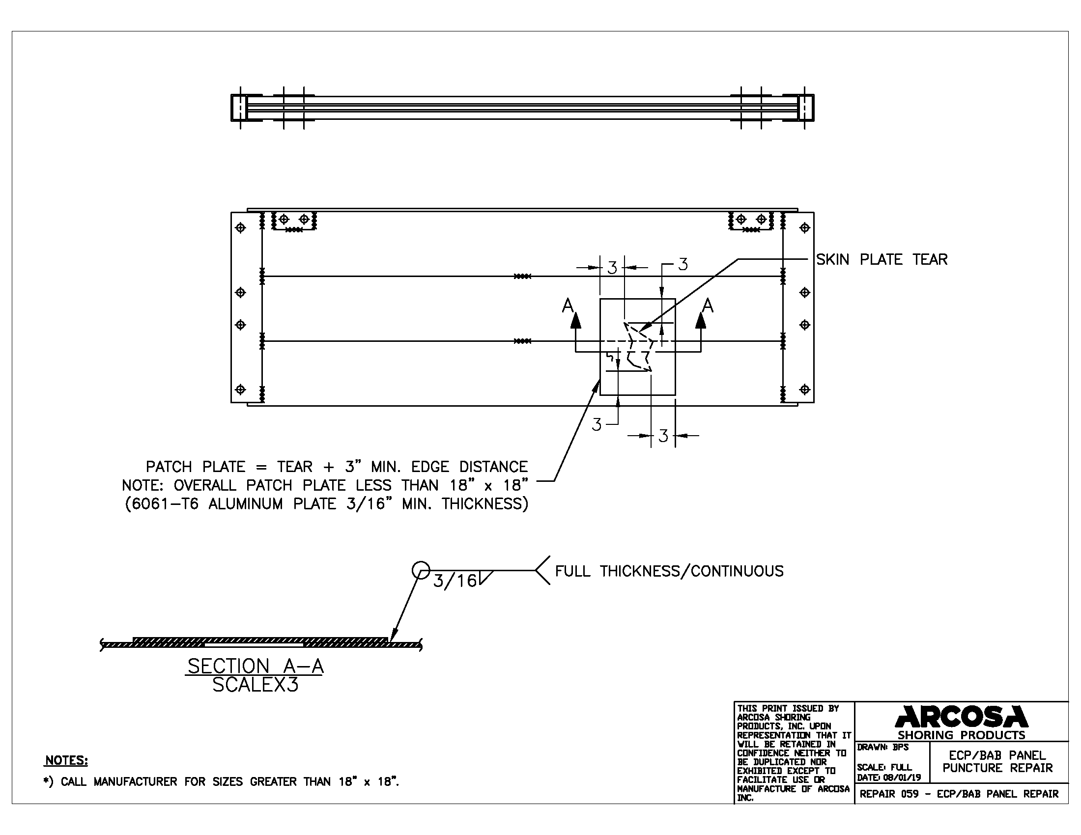
Build-A-Box (ECP) Panel Puncture Repair
GENERAL PANEL PUNCTURE REPAIR SPECIFICATION:
This specification applies to the following types of trench shields: Build-A-Box (ECP)
SPECIFICATIONS
- All material must be 6061-T6 Aluminum plate
- Patch plate size to be tear size plus 3″ on all sides
- Patch plate to be less than 18″ x 18″
PROCEDURE
- Plate patch plate over tear.
- Weld 3/16″ full weld, full thickness/continuous
NOTE
In accordance with OSHA regulations, a Registered Professional Engineer must observe and provide written conformation that the above specification has been followed as authorized by the factory or the Tabulated Data will no longer be valid.
