Height Adapter Repair
Serialized Tab Data
Home › Repair Specifications › Height Adapter Repair
Height Adapter Repair
SPECIFICATIONS
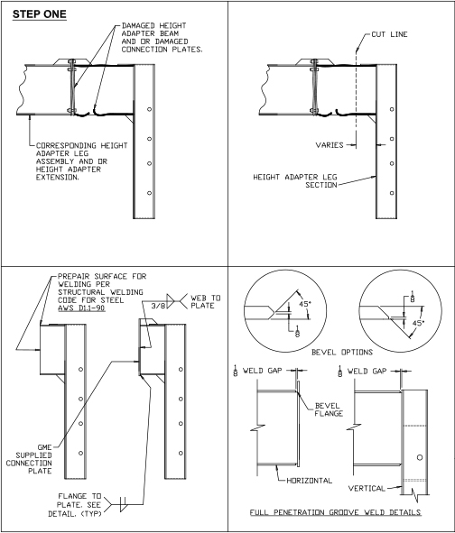
- All welding shall be performed according to the Structural Welding Code for Steel – AWS D1.1-90
- A certified welder shall perform all welding.
- 70,000 psi welding rod or wire shall be used to complete the welds.
PROCEDURE
- Determine the damage area requiring repair.
- Locate and cut the damaged beam section from height adapter leg section.
- Once the damaged section has been completely removed from height adapter, prepare the surface for welding per Structural Welding code AWS D1.1-90. The remaining beam flange(s) must be fully beveled at a 45° per Full penetration groove weld detail as shown in detail.
- Once all the above steps have been completed, weld GME supplied connection plate(s) per weld details shown to appropriate beam section(s).
