Pull Eye Install
Serialized Tab Data
Home › Repair Specifications › Pull Eye Install
Pull Eye Install
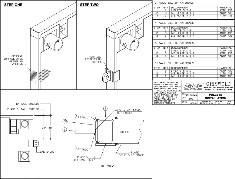
GENERAL PULL-EYE INSTALL SPECIFICATION:
This specification applies to the following types of trench shields:
3M, 4L, 4M, 6M, 8M, T, E, N, K, and LD
SPECIFICATIONS:
- All welding shall be performed according to the Structural Welding Code for Steel – AWS D1.1-90
- A certified welder shall perform all welding.
- 70,000 psi welding rod or wire shall be used to complete the welds.
- The stack Lug shall be manufactured by GME.
PROCEDURE
- Clean the area to be welded thoroughly with a wire brush or grinding wheel.
- Weld beveled D-lug (see detail) to item #2 plate. Place the assembly centered on the end of the shield. Follow by welding item #2 to both the interior and the exterior sides of the sheild. See “Top View” for weld details.
NOTE
GME to supply required parts or plate mtl.
